Altaona Village:
Nachhaltige Designvilla mit Pool und Naturblick

Objekt-Nr.: MNF-MVS8-792

Preis:
503.000 €

Wohnfläche ca.:
196 m²

Grundstück ca.:
451 m²

Zimmeranzahl:
4

Objektbeschreibung

WIR BITTEN UM IHR VERSTÄNDNIS:
ANFRAGEN OHNE GÜLTIGE TELEFONNUMMER UND
RICHTIGE MAILADRESSE WERDEN UMGEHEND GELÖSCHT!

ANFRAGEN MIT VOLLSTÄNDIGEN KONTAKTDATEN WERDEN UMGEHEND BEARBEITET.

BITTE ACHTEN SIE AUF MAILS VON UNS AN SIE,
JE NACH PROVIDER KÖNNEN DIESE GGFLS.
AUCH IN IHREM SPAM- ODER JUNK-MAIL-FILTER LANDEN.


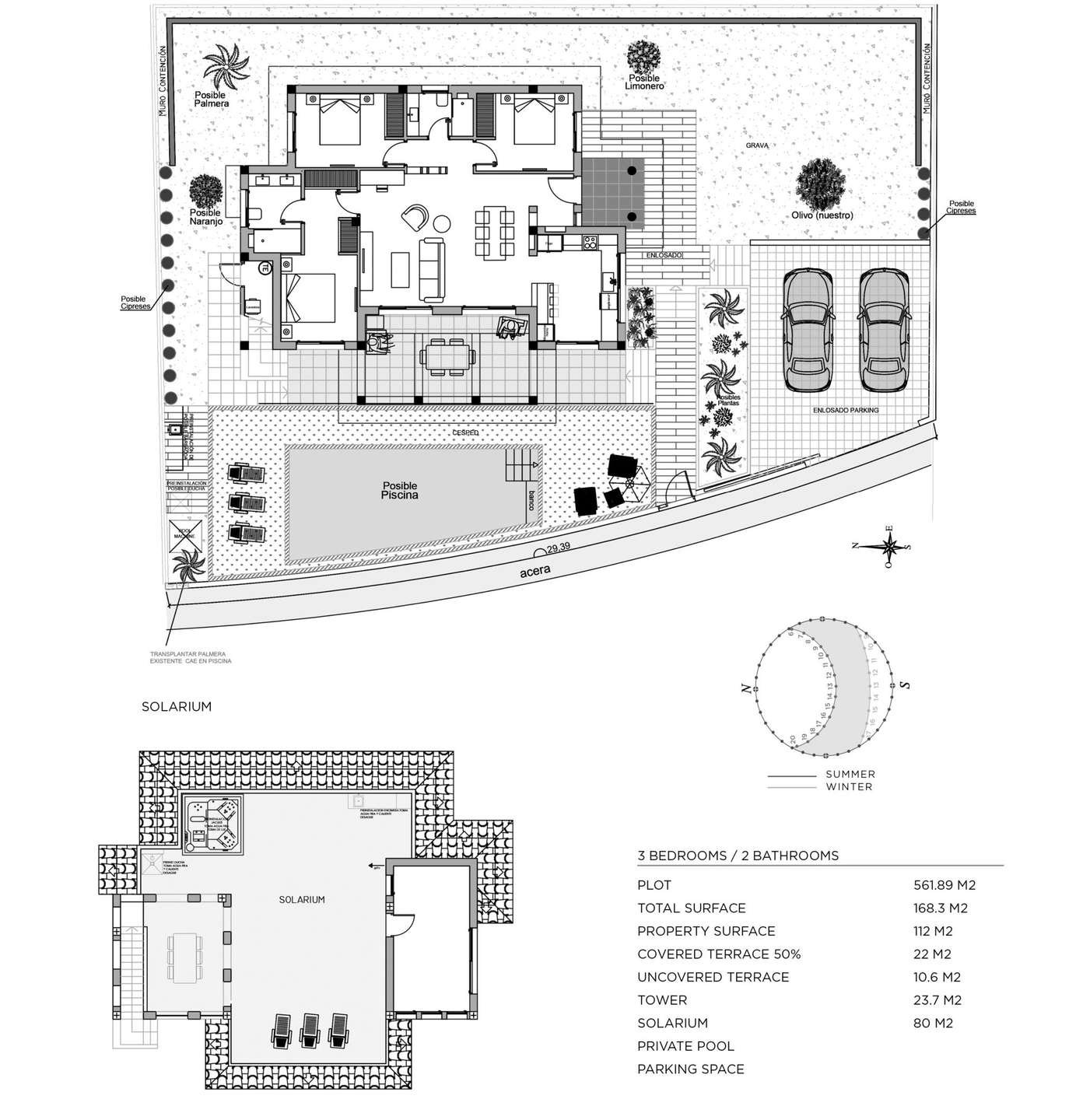
Diese stilvolle Villa im exklusiven Projekt Las Vistas vereint modernes Design, nachhaltige Bauweise und eine außergewöhnliche Lage inmitten der Natur. Auf einem eigenen Grundstück gelegen, bietet die Immobilie drei komfortable Schlafzimmer, zwei elegante Badezimmer, einen privaten Swimmingpool sowie einen eigenen Stellplatz. Die Architektur wurde bewusst darauf ausgerichtet, Ruhe, Entspannung und ein harmonisches Lebensgefühl zu schaffen – ein Ort, an dem Sie abschalten, neue Energie tanken und die Natur in vollen Zügen genießen können.

Mehr anzeigen
Lage

Altaona Village – Leben im Grünen, nur einen Schritt von Murcia entfernt

Mehr anzeigen
Weitere Informationen

Haustyp: Villa


Provisionspflichtig: nein


Küche: Einbauküche, offen


Bad: Dusche


Anzahl Schlafzimmer: 3


Anzahl Badezimmer: 2


Terrasse: 1


Garten: ja


Pool: ja


Umgebung: Einkaufsmöglichkeit, Golfplatz, ruhige Gegend


Anzahl der Parkflächen: 1 x Außenstellplatz


Qualität der Ausstattung: gehoben


Energieklasse: A


Provision

Unsere Angebote sind für Käufer provisionsfrei!

AGB

Alle Angaben in diesem Exposé wurden sorgfältig und so vollständig wie möglich gemacht. Gleichwohl kann das Vorhandensein von Fehlern nicht ausgeschlossen werden. Die Angaben in diesem Exposé erfolgen daher ohne jede Gewähr. Maßgeblich sind die im Miet- und/oder Kaufvertrag geschlossenen Vereinbarungen. Soweit die Grundrissgrafiken, Maßangaben und Einrichtungen enthalten sind, wird auch für diese jegliche Haftung ausgeschlossen. Ebenso weisen wir darauf hin, dass die Grundrissgrafiken nicht immer maßstabsgetreu sind. Besichtigungen sind nur nach vorheriger Terminabsprache, mit Ihrem Ansprechpartner, möglich. Kaufverhandlungen sind ausschließlich über Ihren Ansprechpartner zu führen. Preisänderungen bleiben vorbehalten.

Ihr Ansprechpartner

KP International Immobilien Hofheim
Herr Dennis Lembert

Calle Paris157
03177 San Fulgencio
Telefon: +49 6192 977 0592
Mobil: +34 679 8686 99


Objekt-Adresse

ES-30155 Altaona Village
Videos zum Objekt

Objekt weiterempfehlen

QR-Code