Mutxamel:
Einzigartiges Baugrundstück mit Potential für zwei großzügige Villen

Property ID: FV-FV6020
E-BOOK COSTA BLANCA AK

E-BOOK COSTA BLANCA AK

IHR ANSPRECHPARTNER ARNO KUPEC

IHR ANSPRECHPARTNER ARNO KUPEC

E-BOOK COSTA BLANCA AK
IHR ANSPRECHPARTNER ARNO KUPEC

Plot size:
48.295 sq. m.

Price:
195.000 €

May be developed short-term:
yes

Property description

WIR BITTEN UM IHR VERSTÄNDNIS:
ALLE ANFRAGEN OHNE GÜLTIGE TELEFONNUMMER ODER
RICHTIGE MAILADRESSE WERDEN GELÖSCHT.

ALLE ANDEREN ANFRAGEN MIT VOLLSTÄNDIGEN
KONTAKTDATEN WERDEN INNERHALB VON 24 STUNDEN BEARBEITET.

BITTE ACHTEN SIE AUCH AUF UNSERE MAILS AN SIE, DIESE KÖNNEN DURCHAUS AUCH IN IHREM SPAM-FILTER LANDEN.


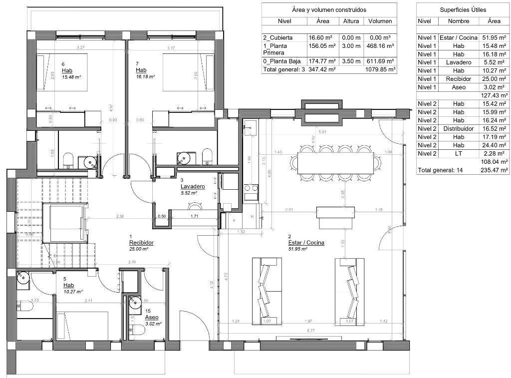
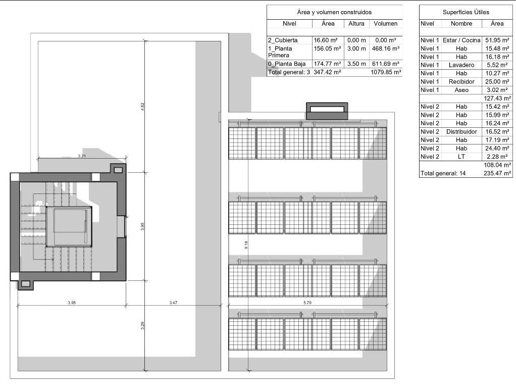
Großzügiges Grundstück mit großem Baupotenzial in idyllischer Lage

Dieses beeindruckende Grundstück bietet mit 48.285 m² viel Raum für Ihre individuellen Wohnträume. Auf dem Gelände besteht die Möglichkeit, zwei großzügige Häuser mit jeweils ca. 1.

Show more
Location

Mutxamel liegt nahe der Costa Blanca im Südosten Spaniens. Die Ortsmitte der Stadt liegt etwa 9 km nordöstlich von Alicante, in dem historischen Landstrich "Huerta de Alicante", durch den der Fluss Monnegre fließt. Dieser ist Lebensader der Bevölkerung und Grund für den schwunghaften Aufstieg der Gemeinde.
Schon in früheren Zeiten war Mutxamel ein Ort, in dem wohlhabende Alicantiner ihren Sommer verbrachten.

Show more
Details

Type of usage: Living


Development: opened up to local practice


May be developed from: Building land with no development plan


Recommended use: Villa


Surroundings: Shopping facilities, Golf course, Quiet area


Subject to commission: no


Commission Rate

Unsere Angebote sind für Käufer provisionsfrei!

General business conditions

Alle Angaben in diesem Exposé wurden sorgfältig und so vollständig wie möglich gemacht. Gleichwohl kann das Vorhandensein von Fehlern nicht ausgeschlossen werden. Die Angaben in diesem Exposé erfolgen daher ohne jede Gewähr. Maßgeblich sind die im Miet- und/oder Kaufvertrag geschlossenen Vereinbarungen. Soweit die Grundrissgrafiken, Maßangaben und Einrichtungen enthalten sind, wird auch für diese jegliche Haftung ausgeschlossen. Ebenso weisen wir darauf hin, dass die Grundrissgrafiken nicht immer maßstabsgetreu sind. Besichtigungen sind nur nach vorheriger Terminabsprache, mit Ihrem Ansprechpartner, möglich. Kaufverhandlungen sind ausschließlich über Ihren Ansprechpartner zu führen. Preisänderungen bleiben vorbehalten.

Your contact person

KP International Immobilien Hofheim
Mr. Dennis Lembert

Calle Paris157
03177 San Fulgencio
Phone: +49 6192 977 0592
Mobile phone: +34 679 8686 99


Property-Address

ES-03110 Mutxamel
Videos to the object

Links

    Recommend object

    QR-Code